NorthCity

Haachtsesteenweg 1475, 1130 Haren

Omschrijving

Projectnaam: NorthCity

Ligging: Haachtsesteenweg 1475, Haren

Grond: 2,5 ha

Beschrijving: Herontwikkeling van oude site Orchestra tot zone bestemd voor huisvesting en industrie, gelegen vlakbij de Ring rond Brussel.

De verlaten site van Orchestra Prémaman krijgt een nieuw leven! Deze verouderde gebouwen maken plaats voor gloednieuwe ruimte waar wonen en werken gecombineerd worden, dit op een boogscheut van Brussel. NorthCity is een multifunctionele plek met een mix van enerzijds loodsen, showrooms en kantoorachtigen en anderzijds een woongedeelte. Het project werd in 2018 aangekocht door ontwikkelaar Futurn, die Citydev en Inclusio (investeringsfonds) als ideale partners vond om NorthCity mee verder uit te bouwen. Het resultaat is een gevarieerde plek bestaande uit een combinatie van nieuwbouw en renovatie. Dankzij de doordachte visie vormt de mix van gebouwen met verschillende functies toch een complementair geheel. Wonen en werken in een kwalitatieve omgeving in een groen kader: dat is NorthCity ten voeten uit!

3 ha
oppervlakte
40 %
hergebruik van gebouwen

Ligging

 

Beelden

Aanbod

-

NorthCity Loods Loods Loods Loods Loods Loods Loods - Showroom - Kantoor Loods - showroom - kantoor - terras Loods - showroom - kantoor Loods - showroom - kantoor Loods - showroom - kantoor - terras Loods Loods Loods Loods Loods Loods 135 m² 58 m² Kantoorachtigen te huur - 1000 m² - opsplitsbaar vanaf 50 m²  TE HUUR - 239 m² - 3 parkeerplaatsen – 2.000 euro/maand huur ex BTW en lasten

 

Gebouw G

NorthCity Kantoren op gelijkvloers Atelier/opslag op gelijkvloers Atelier/opslag op gelijkvloers Atelier/opslag op gelijkvloers Kantoren op verdieping 1 Kantoren op verdieping 1 Kantoren op verdieping 2

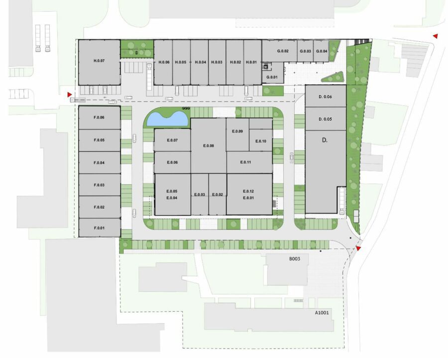
MASTERPLAN

Unit Type Oppervlakte Status Download
G001 - Kantoor op gelijkvloers Kantoor
80 m² Gereserveerd
G002 - Atelier/opslagruimte op gelijkvloers Loods
237.5 m² Te huur
G003 - Atelier/opslagruimte op gelijkvloers Loods
108 m² Te huur
G004 - Atelier/opslagruimte op gelijkvloers Loods
102 m² Gereserveerd
G1.1 - Kantoor op verdieping 1 Kantoor
182.5 m² Gereserveerd
G1.2 - Kantoor op verdieping 1 Kantoor
375.5 m² Te huur
G2 - Kantoor op verdieping 2 Kantoor
275 m² Gereserveerd

 

Gebouwen voor vrije beroepen

Unit Type Oppervlakte Status Download
A1001 Polyvalente ruimte voor vrije beroepen 58 m² Te huur
B003 Polyvalente ruimte voor vrije beroepen 135 m² Te huur

Blog

Inhuldiging residentiële zone NorthCity

15-12-2022

In maart 2022 openden Futurn en citydev.brussel officieel het kmo-park van NorthCity in #Haren. Vandaag werd de residentiële zone van dit gemengde project officieel ingehuldigd door partner Inclusio: 123 energie-efficiënte en betaalbare huurwoningen worden er door Sociale Verhuurkantoren aan gezinnen aangeboden.

Met oprechte dank aan het voltallige bouwteam:

✍️ Architect: UNA|A

🛠️ Studiebureau EPB technieken: MK Engineering

⚖️ Studiebureau stabiliteit: SWECO

🦺 Studiebureau veiligheid en technische controle: SECO

✔️ Projectmanagement: Atelier Broos

🔊 Studiebureau akoestiek: Bureau De Fonseca

🏗️ Algemene aannemer: Willemen Construct

🚰 Aannemer HVAC/sanitair: Sanitechnic

⚡ Aannemer elektriciteit: EQANS

​Tevreden klant in Haren: DEFI ELEC

02-11-2022

Tevreden klant in Haren!

DEFI ELEC - Electricien élite ging in zee met Futurn en vestigde zich op bedrijvenpark NorthCity.

De unit werd hoogwaardig afgewerkt door de eigenaar en voorzien van een uit de kluiten gewassen mezzanine wat een optimaal ruimtegebruik toelaat.

Bedankt voor het vertrouwen!

Groene stroom voor NorthCity via zonnepanelen

14-04-2022

De kers op de taart. Vandaag werden zonnepanelen geplaatst op de structuren die de ruimte tussen de verschillende bedrijfsverzamelgebouwen overspannen. Deze structuren zijn afkomstig van de toenmalige Prémaman-gebouwen en werden bewust behouden om de zonnepanelen een plaats te geven. Een oplossing op maat die ons in staat stelt de schaarse ruimte efficiënt te benutten.

Via de zonnepanelen kan elke unit binnen het bedrijvenpark voorzien worden van zijn eigen duurzame bron van groene stroom.

Officiële inhuldiging bedrijvenpark

07-04-2022

Op maandag 28 maart werd het bedrijfsgedeelte van het gemengde project NorthCity feestelijk ingehuldigd in aanwezigheid van staatssecretaris van het Brussels Hoofdstedelijk Gewest Barbara Trachte. Het Brussels gewest is hiermee een fonkelnieuw KMO-park voor ambachtelijke en productieactiviteiten rijker. 24 KMO-units werden verkocht door Futurn, de overige 20 ateliers worden verhuurd door citydev.brussels. Een succesverhaal van publiek-private samenwerking waarin circulair bouwen centraal staat. Eind 2022 wordt ook de residentiële zone opgeleverd, goed voor 123 appartementen die eigendom blijven van Inclusio SA en via sociale verhuurkantoren zullen worden verhuurd.

We blikken terug op een mooie samenwerking tussen de verschillende partijen.

De aannemers:
NV Mathieu Gijbels en Willemen Construct

Het studieteam:
UNAA
Atelier Broos
MK Engineering
Tom Hernalsteen
Koen Weymeers

Fotografie l © citydev.brussel

Voortgang site Northcity

22-10-2021

Het buitenschrijnwerk van de KMO-gebouwen werd intussen geplaatst. De laatste afwerkingen worden nu uitgevoerd. In gebouw E werden de helft van de betonvloeren gestort. De riolering en nutsleidingen van de 1e fase zijn uitgevoerd. Momenteel wordt alles in gereedheid gebracht voor de uitvoering van de klinkerverharding. Aansluitend zal de beton van de wegenis gestort worden.

​Het gaat hard op bedrijvenpark NorthCity!

01-10-2021

Het gaat hard op bedrijvenpark NorthCity!

Benieuwd naar de vorderingen van begin tot nu? Bekijk de indrukwekkende transformatie in onderstaande video.

Update NorthCity

10-09-2021

De werken op bedrijvenpark NorthCity zijn opnieuw aangevat na het bouwverlof!

De buitenaanleg is gestart: aanleg nutsvoorzieningen, de riolering en nadien de toegang tot het bedrijvenpark en de wegenis langsheen de gebouwen. Verder is de aannemer bezig met plaatsing van het buitenschrijnwerk. In blok F is de betonvloer uitgevoerd. De betonvloer in blok E is in uitvoering.

​De sprint richting het bouwverlof is ingezet!

05-07-2021

De staalconstructie van gebouw D is klaar en momenteel worden de laatste gevelpanelen in beton geplaatst. Aansluitend start de plaatsing van het dak. De open ruwbouw van gebouw E&F is afgerond. De bestaande daken zijn voorzien van nieuwe isolatie en de nieuwe dakdichting wordt nu afgewerkt. De sectionaalpoorten en het buitenschrijnwerk zijn in uitvoering. De gordijngevel van gebouw G is bijna klaar, de betonnen sandwichpanelen van gebouw H zijn geplaatst. Vanaf juli worden de vloerplaten in de units gestort en zullen de werken aan de buitenomgeving starten.

Plaatsing gevelpanelen bijna afgerond

11-05-2021

Status van de werken

01-04-2021

Plaatsing van de gevels blok F

11-03-2021

De gevelpanelen worden geplaatst tussen de units van blok F.

Afbraak voltooid

08-01-2021

De afbraakwerken zijn ondertussen voltooid, binnenkort starten de constructiewerken.

Timelapse status afbraakwerken

13-11-2020

In Haren gingen we begin september van start met de afbraakwerken van de vroegere site van Orchestra Prémaman. Een deel van de gebouwen, zoals het verouderde kantoorgebouw, is verdwenen terwijl de magazijnen zo optimaal mogelijk zullen worden hergebruikt en een nieuw leven krijgen. Dit alles staat in het teken van de ontwikkeling van het nieuwe project #NorthCity, dat samen met citydev.brussels en Inclusio SCA wordt gerealiseerd.

NorthCity wordt een multifunctionele én duurzame plek met een mix van enerzijds loodsen, showrooms en kantoorachtigen en anderzijds een woongedeelte, gelegen op een boogscheut van Brussel!

Het is al een behoorlijke metamorfose, vinden jullie niet?
Ook benieuwd naar het vervolg? Hou ons in de gaten!

Succesvolle lancering van NorthCity

10-09-2020

Op 08/09 werd het project NorthCity officieel gelanceerd, dit in aanwezigheid van schepen Karine Lalieux en staatssecretarissen van het Brussels Hoofstedelijk Gewest Barbara Trachte en Nawal Ben Hamou. Het werd een succesvolle editie met heel wat opkomst en persaandacht!

Een samenwerking met citydev.brussels en Inclusio waar we trots op zijn! Dat we daarnaast ook volop gaan inzetten op duurzaam ruimtegebruik maakt dit van NorthCity een topreferentie in wording!

Foto's vroegere situatie

24-03-2019

Benieuwd hoe deze site er vroeger uitzag? Bekijk hier enkele foto's.